Budżet partycypacyjny Warszawa 2015

Wyniesione powierzchnie skrzyżowań, ronda typu pinezka, sinusoidalne progi zwalniające - rozwiązania prosto z Holandii zawitają wkrótce w mieście powiatowym Puławy, by podnieść poziom bezpieczeństwa ruchu drogowego.

Dutch Town

Miasteczko Holenderskie będzie efektem pilotażowego programu uspokajania ruchu w puławskiej dzielnicy Włostowice, realizowanego przez Sekretariat Krajowej Rady Bezpieczeństwa Ruchu Drogowego, Zarząd Dróg Wojewódzkich w Lublinie oraz Zarząd Miasta Puławy, przy współpracy z rządem Holandii. Celem projektu jest zmniejszenie liczby wypadków drogowych i ich ofiar poprzez uspokojenie ruchu kołowego w obszarze dzielnicy mieszkaniowej i na przebiegającej po jej obrzeżu drodze wylotowej o dużym natężeniu ruchu kołowego. Realizowany będzie on w oparciu o sprawdzone rozwiązania holenderskie, obejmujące:

- Wydzielenie dróg o dopuszczalnej prędkości do 50 km/h, stref ograniczenia do 30 km/h, oraz ulic bez przejazdu i jednokierunkowych;

- Utworzenie „bram” wjazdowych do strefy „30”, wyniesionych powierzchni skrzyżowań, rond typu pinezka, progów zwalniających itp.

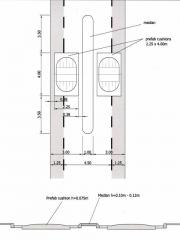
Zaproponowane zostały konkretne rozwiązania geometryczne, m.in. kształt i konstrukcja progów zwalniających oraz pochylni, wykorzystywanych przy budowie wyniesionych powierzchni. Sinusoidalny przekrój progu i pochylni, w odróżnieniu od stosowanych w Polsce przekrojów w kształcie wycinka koła, umożliwia łagodny przejazd pojazdów z zakładaną prędkością projektową, w tym np. autobusów komunikacji miejskiej. W projekcie uwzględniono uwarunkowania lokalne. Przykładowo, uspokojenie ruchu w rejonie przedszkola i szkoły - zaplanowano tam poprowadzenie ciągów pieszych w jednym poziomie dzięki zaprojektowaniu wyniesionych powierzchni: przejść dla pieszych, skrzyżowań, a także wyjazdów z parkingu.

Po co to wszystko?

Projekt ma na celu przeniesienie na krajowy grunt zachodnich rozwiązań i doświadczeń związanych z uspokajaniem ruchu. Nie będzie to jedynie projekt pilotażowy, czy demonstracyjny. Polskie prawo obecnie nie dopuszcza takich rozwiązań jakie w nim zostaną zastosowane. Celem projektu będzie zatem także weryfikacja obecnych przepisów i przygotowanie ich zmian.

Miasto Puławy wytypowane zostało między innymi ze względu na zróżnicowany układ geometryczny ulic oraz różne kategorie dróg, co pozwala na zastosowanie różnorodnych elementów uspokojenia ruchu. Na ich przykładzie podjęte zostaną działania mające na celu zmianę podejścia do projektowania dróg w obszarach zabudowy i do uspokajania ruchu. Między innymi, przeprowadzone mają być szkolenia dla kadry inżynierskiej i zarządzającej drogami oraz dla projektantów.

Jest to optymistyczna wiadomość, zważywszy na fakt, iż polskie prawodawstwo nie pozwala na szersze zastosowanie powyższych rozwiązań, gdyż nie są one zgodne z naszymi standardami technicznymi. Warto jednak zauważyć, iż w Holandii program uspokajania ruchu drogowego realizowany jest bez jednolitych unormowań prawnych. Pomimo tego Holendrzy wykazują się niezwykłą konsekwencją w dążeniu do celu, którym jest uzyskanie odpowiedniego efektu w postaci redukcji prędkości bądź wymuszenia konkretnego zachowania użytkowników dróg. Środki uspokojenia ruchu stosowane od wielu lat na holenderskich drogach mają bezpośredni wpływ na obecny stan bezpieczeństwa ruchu w Królestwie Niderlandów.

Bez znaków jeszcze lepiej

Dobrym przykładem holenderskich sukcesów jest miasteczko Drahten, położone przy autostradzie Amsterdam - Groningen. W tym 43-tysięcznym mieście zrezygnowano ze stosowania jakichkolwiek znaków drogowych. Skrzyżowania wyróżnione są nawierzchnią koloru czerwonego i obowiązuje na nich zasada pierwszeństwa dla kierowcy nadjeżdżającego z prawej strony. Ponadto obowiązuje ograniczenie prędkości do 30 km/h. Nowatorski system działa doskonale – dzięki niemu o 70% zmniejszyła się liczba wypadków, a samochody poruszają się po mieście bardzo płynnie. Niska prędkość jazdy ulicami pozwala na łatwe włączanie się w sznur jadących samochodów, a świadomość, że na skrzyżowaniach zdanym się jest na samego siebie i uwagę innych, wzmacnia koncentrację kierowców.

Jak na polskie warunki wydaje się to być na razie zbyt odważne posunięcie, zwłaszcza że dla wielu osób nawet koncepcja Dutch Town może wydać się kontrowersyjna. Miejmy jednak nadzieję, iż w znaczący sposób przyczyni się ona do zmniejszenia liczby wypadków drogowych i ich ofiar w Puławach, a co za tym idzie przekona Polaków do szerszego wykorzystywania zachodnich doświadczeń. Starać się o to będzie również redakcja Zielonego Światła - w tym celu kolejny numer biuletynu poświęcony zostanie w głównej mierze zagadnieniom związanym z uspokajaniem ruchu.

Przykłady rozwiązań szczegółowych

Specjalne pasy przeprowadzą rowerzystę przez skrzyżowanie z drogą przelotową oraz pozwolą mu bezpiecznie włączyć się do ruchu. Na granicy strefy Tempo 30 próg spowalniający przyjazny dla autobusów.

Próg spowalniający przyjazny dla ruchu autobusowego - profil pokonywanego progu zależy od rozstawu kół.

W artykule wykorzystano informacje Krajowej Rady Bezpieczeństwa Ruchu Drogowego. Więcej rysunków rozwiązań proponowanych w ramach Dutch Town na stronie (ogłoszenie z 2006.10.06):

www.krbrd.gov.pl/aktualnosci/zamowienia_publiczne.htm