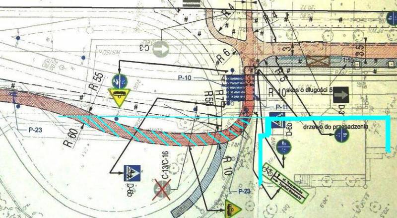
Trudno uznać za bezpieczne rozwiązanie, w którym rowerzysta wyjeżdża na torowisko zza budynku (elewacja pogrubiona niebieską linią na rysunku, zakreskowana strefa niewidoczności). Kolejne zagrożenie spowoduje brak widoczności między rowerzystami a pasażerami wychodzącymi z końcowego peronu na pętli (szary łuk w dolnej części rysunku). Wzajemną obserwację uniemożliwi zawracający wagon stojący prostopadle do ścieżki.
Wróć do treści artykułu.


